当前位置:主页 > 案例作品 > 精品案例 >
案例风格
北欧
案例户型
别墅
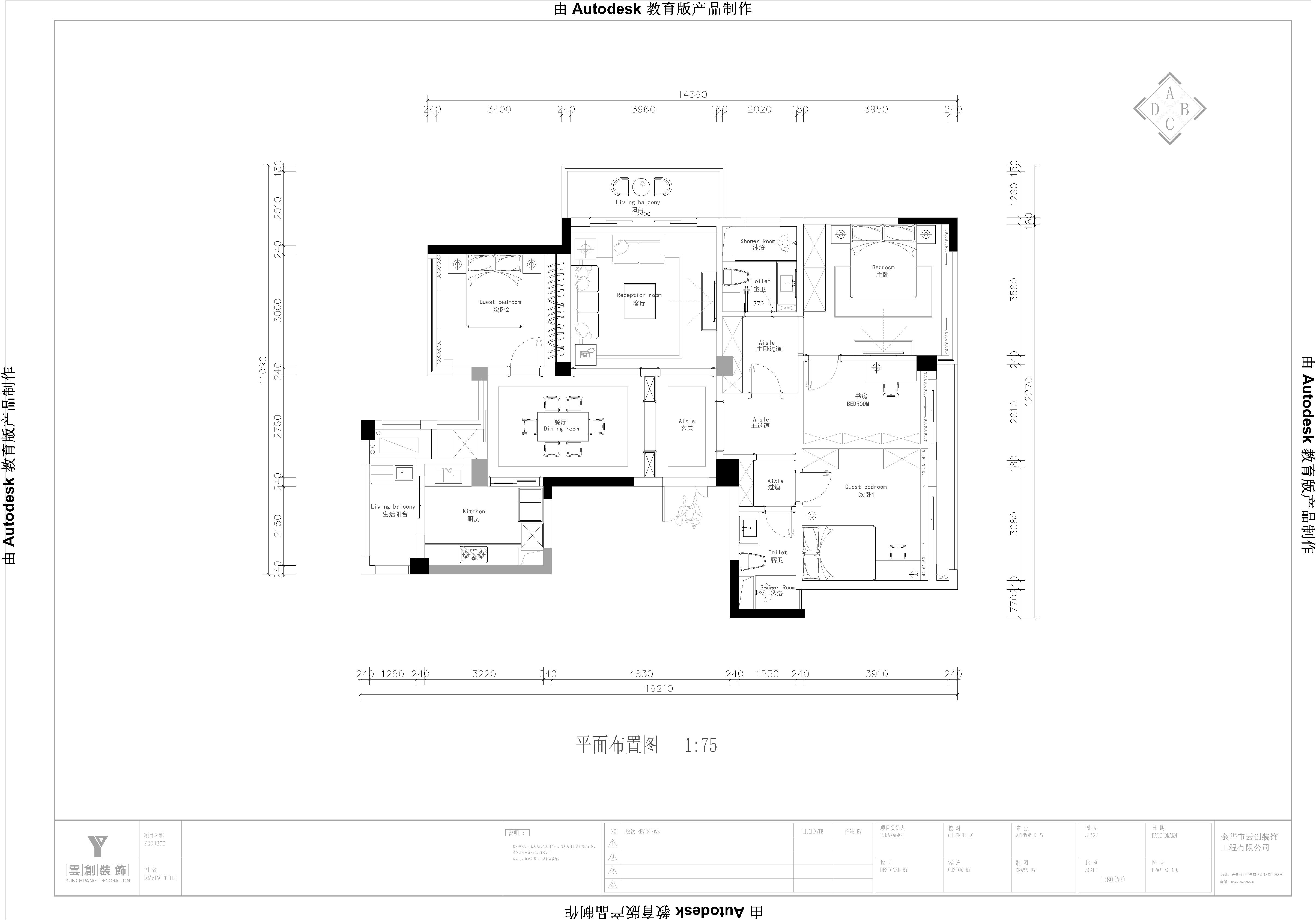
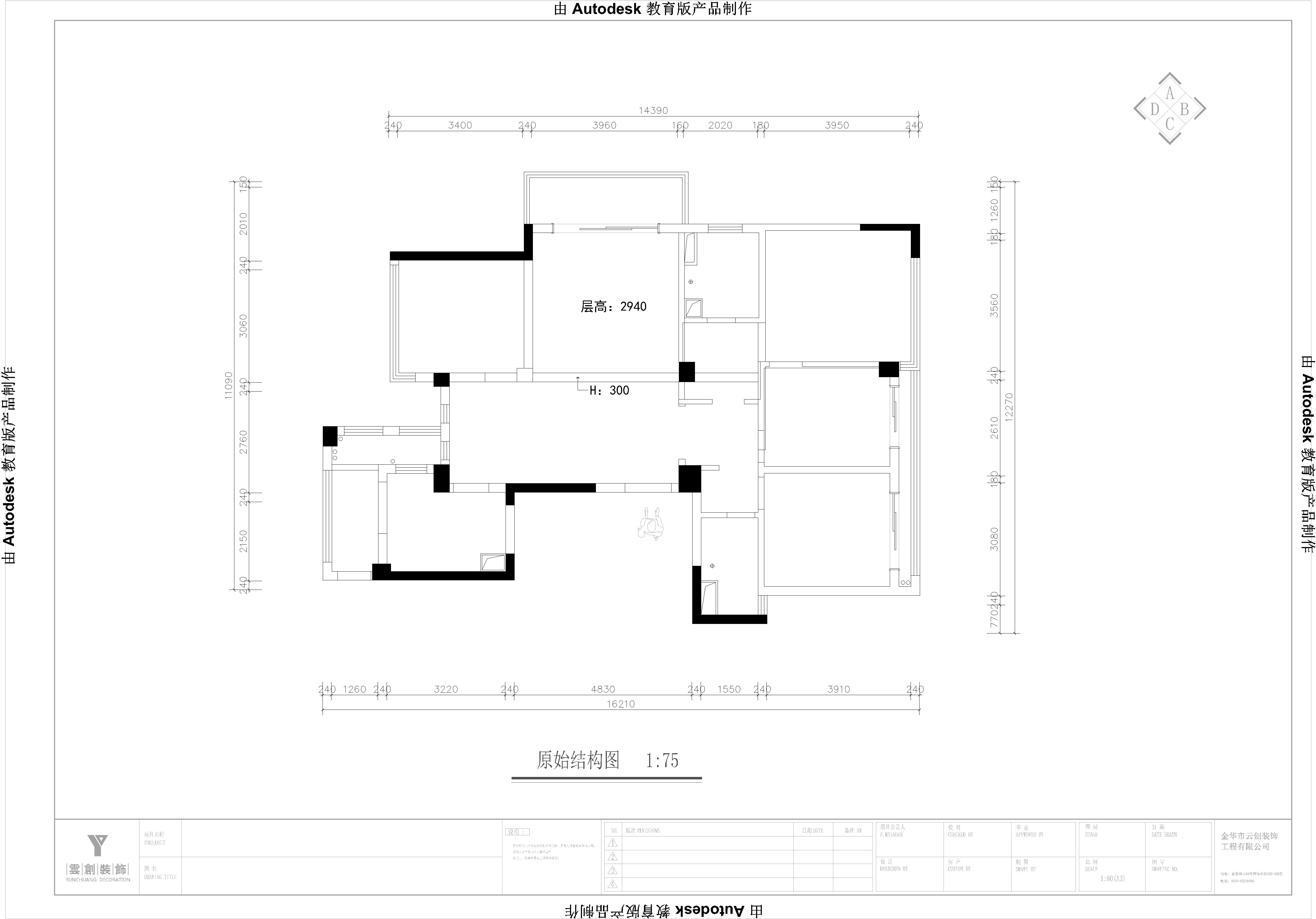
案例面积
360
楼盘名称
主设计师
应磊
案例造价
60万
本案例设计师简介
相关案例
常青墅 300平方
300平米别墅装修设计案例
碧桂园现代简约中式雅居私人定制
现代风格设计案例

30秒预测家装费用

房屋户型
楼盘信息
套内面积
装修风格
装修套系
您的称呼
手机号码
短信验证码
获取验证码
智能系统报价
人工精准报价
快速导航